Listing Tools

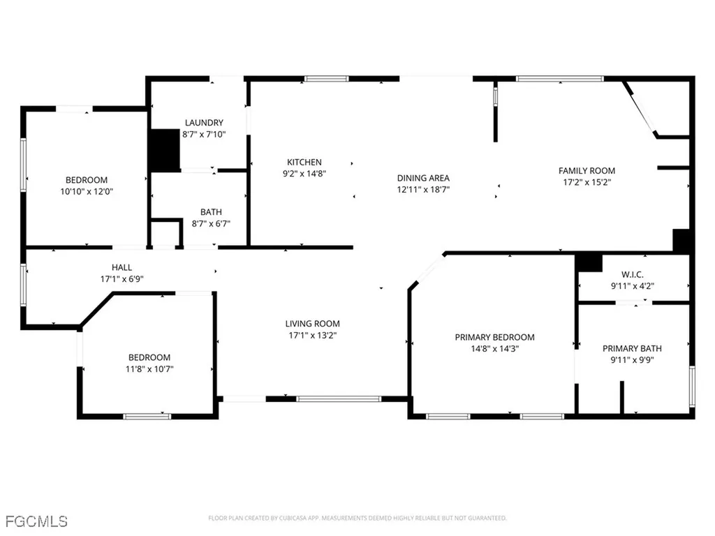
Fantastic opportunity in Spring Woods M/H Subdivision! FLOOD ZONE X - NO FLOOD INSURANCE REQUIRED! This spacious 1,781 sq ft, 3-bedroom, 2-bath home offers no age restrictions, no tenant restrictions, and allows up to two pets. Built in 2003, the home features a perfect split-bedroom floor plan, a large kitchen with ample cabinetry, a living room plus a separate family room, and a convenient laundry room. Two refrigerators and washer/dryer are included. The large primary suite features a soaking tub, separate shower, and a generous walk-in closet. An additional open den area with built-in shelving sits at the end of the hallway-ideal for office, hobby, or extra storage. A new storage shed (2023) in the backyard provides extra room for tools and equipment. Roof replaced in 2016. Large lot with extra paved parking and carport. Enjoy a quiet country setting while still being close to shopping and schools. Spring Woods offers low monthly fees of only $78, which include access to the clubhouse, community pool with picnic area, lake, and RV/boat storage. HOA documents attached to MLS. There is a central AC system but does not work.

Property Details

Interior Features

Exterior Features

Utilities and Appliances

Community

Map Location

Listed by Barbara Klare of Century 21 AllPoints Realty

Based on information submitted to Gulf Coast as of March 7, 2026 . All data is obtained from various sources and has not been, and will not be, verified by broker or Gulf Coast.  All information should be independently reviewed and verified for accuracy. Properties may or may not be listed by the office/agent presenting the information. NOTICE: Many homes contain recording devices, and buyers should be aware they may be recorded during a showing.

Hi there! How can we help you?

Contact us using the form below or give us a call.

Send Us A Message:

I agree to be contacted by Gabriele H. Vretta, PA via call, email, and text for real estate services. To opt out, you can reply ‘stop’ at any time or reply ‘help’ for assistance. You can also click the unsubscribe link in the emails. Message and data rates may apply. Message frequency may vary. Privacy Policy.

Do not fill in this field:

This site is protected by reCAPTCHA and the Google Privacy Policy and Terms of Service apply.

Hi there! How can we help you?

Contact us using the form below or give us a call.

Send Us A Message:

Do not fill in this field:

This site is protected by reCAPTCHA and the Google Privacy Policy and Terms of Service apply.

Hi there! How can we help you?

Contact us using the form below or give us a call.

Send Us A Message:

Do not fill in this field:

This site is protected by reCAPTCHA and the Google Privacy Policy and Terms of Service apply.

Do not fill in this field:

This site is protected by reCAPTCHA and the Google Privacy Policy and Terms of Service apply.

Do not fill in this field:

This site is protected by reCAPTCHA and the Google Privacy Policy and Terms of Service apply.

Do not fill in this field:

This site is protected by reCAPTCHA and the Google Privacy Policy and Terms of Service apply.

$

Do not fill in this field:

This site is protected by reCAPTCHA and the Google Privacy Policy and Terms of Service apply.