Listing Tools

Affordable Gulf-Access Home in Old Bridge Village (55+ Gated Community) Discover a FULLY REMODELED home with direct river and gulf access located in the desirable Old Bridge Village 55+ gated community. This property offers upgraded interior finishes, resort-style amenities, and an ideal location for boating, fishing, and enjoying the Florida lifestyle. Waterfront & Boating Access: Direct, unobstructed Gulf access from the community via the Caloosahatchee Boat and kayak access available through a rented marina slip or community launch. Modern Interior Remodel: STAINLESS STEEL APPLIANCES. European-style cabinets and GRANITE COUNTERTOPS. Large open-concept kitchen with oversized island and skylight. Bright, modern layout designed for entertaining. High-Quality Upgrades: New waterproof flooring, new baseboards, crown molding, and chair rail. New 3/4” subfloors with vapor barrier and insulation. New rolled roof, new insulation, water heater and 2 new heat/cool split units. Outdoor Features: Screened lanai perfect for morning coffee and glassed in Lanai. Private landscaped garden area with road privacy, West-side carport curtains for shade and weather protection, Large storage shed with laundry hookups (there is a washer and dryer but not new). Community Amenities: Secure, manned gate with a low $386 monthly HOA fee. Resort-style pool, hot tub, fitness center, clubhouse, tennis courts, and pickleball courts. Oceanfront park with scenic views. Active 55+ community with organized activities and social events. Additional Details: Realtor-owned property, well maintained and thoughtfully upgraded. Schedule a Private Tour: Live the Florida waterfront lifestyle at an affordable price. Contact your agent to see this Gulf-access home today.

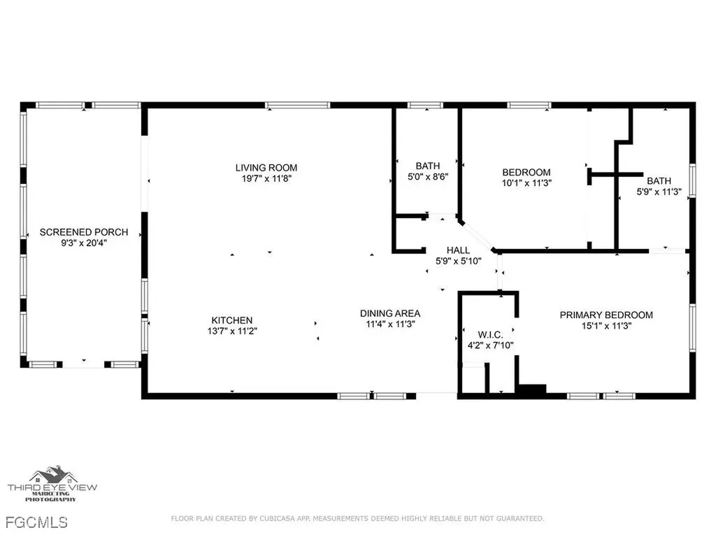
Property Details

Interior Features

Exterior Features

Utilities and Appliances

Community

Map Location

Listed by Claudia Springgay of LoKation

Based on information submitted to Gulf Coast as of March 14, 2026 . All data is obtained from various sources and has not been, and will not be, verified by broker or Gulf Coast.  All information should be independently reviewed and verified for accuracy. Properties may or may not be listed by the office/agent presenting the information. NOTICE: Many homes contain recording devices, and buyers should be aware they may be recorded during a showing.

Hi there! How can we help you?

Contact us using the form below or give us a call.

Send Us A Message:

I agree to be contacted by Gabriele H. Vretta, PA via call, email, and text for real estate services. To opt out, you can reply ‘stop’ at any time or reply ‘help’ for assistance. You can also click the unsubscribe link in the emails. Message and data rates may apply. Message frequency may vary. Privacy Policy.

Do not fill in this field:

This site is protected by reCAPTCHA and the Google Privacy Policy and Terms of Service apply.

Hi there! How can we help you?

Contact us using the form below or give us a call.

Send Us A Message:

Do not fill in this field:

This site is protected by reCAPTCHA and the Google Privacy Policy and Terms of Service apply.

Hi there! How can we help you?

Contact us using the form below or give us a call.

Send Us A Message:

Do not fill in this field:

This site is protected by reCAPTCHA and the Google Privacy Policy and Terms of Service apply.

Do not fill in this field:

This site is protected by reCAPTCHA and the Google Privacy Policy and Terms of Service apply.

Do not fill in this field:

This site is protected by reCAPTCHA and the Google Privacy Policy and Terms of Service apply.

Do not fill in this field:

This site is protected by reCAPTCHA and the Google Privacy Policy and Terms of Service apply.

$

Do not fill in this field:

This site is protected by reCAPTCHA and the Google Privacy Policy and Terms of Service apply.